Projektleitung:
Andreas Schoch
Team:
Dietmar Eichhorn, Angelina Schneider
Ort:
Ettlingen-Bruchhausen
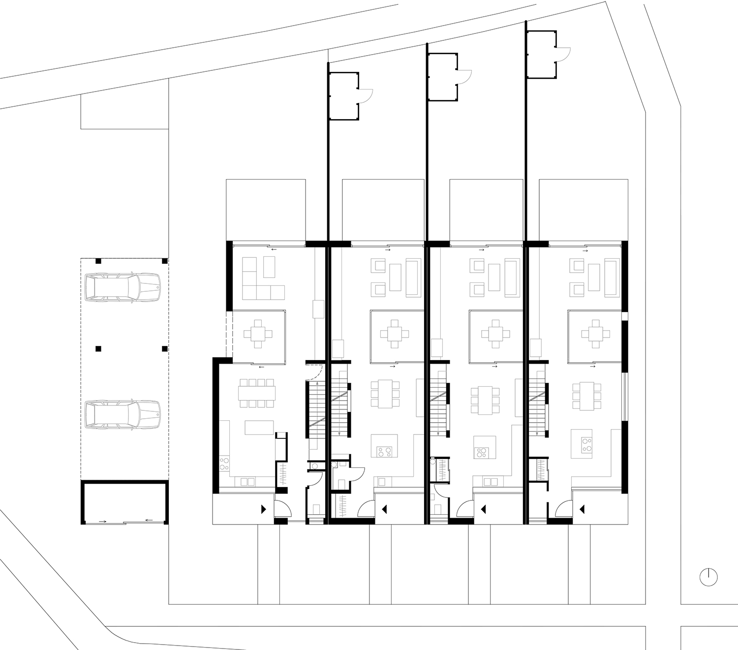
Vier Reihenhäuser teilen sich ein gemeinsames Thema: Ein Innenhof oder auch Atrium genannt, ermöglicht einen geschützten Außenraum zur Belichtung und Zonierung des langgestreckten Wohnbereichs im Erdgeschoss.
Die schmale Hausbreite von 5,60 m wird durch eine Gebäudetiefe von mehr als 15 m kompensiert. Im Erdgeschoss gliedert sich der großzügige Wohnraum der Länge nach in eine Wohnzimmerzone und einen Essbereich mit offener Küche. Dazwischen fügt sich das Atrium als verglastes Element ein, welches den Bewohnern eine Vielzahl an Nutzungsmöglichkeiten bietet.
Von den geschützten Dachterrassen im Dachgeschoss, hoch über der stark frequentierten Bundesstraße, hat man den Blick über die Dächer der Nachbarhäuser nach Nord- Westen. Zur Süd- Ost Seite blickt man durch raumhohe, verglaste Fensterelemente in das Panorama des Nordschwarzwaldes.
Im Inneren wurde auf Kontraste gesetzt. So stehen Sichtbetonwände und geschliffene Estriche im Gegensatz zu warmen Holzböden aus Eiche.
Projektleitung:
Andreas Schoch
Team:
Dietmar Eichhorn, Angelina Schneider
Ort:
Ettlingen-Bruchhausen
Vier Reihenhäuser teilen sich ein gemeinsames Thema: Ein Innenhof oder auch Atrium genannt, ermöglicht einen geschützten Außenraum zur Belichtung und Zonierung des langgestreckten Wohnbereichs im Erdgeschoss.
Die schmale Hausbreite von 5,60 m wird durch eine Gebäudetiefe von mehr als 15 m kompensiert. Im Erdgeschoss gliedert sich der großzügige Wohnraum der Länge nach in eine Wohnzimmerzone und einen Essbereich mit offener Küche. Dazwischen fügt sich das Atrium als verglastes Element ein, welches den Bewohnern eine Vielzahl an Nutzungsmöglichkeiten bietet.
Von den geschützten Dachterrassen im Dachgeschoss, hoch über der stark frequentierten Bundesstraße, hat man den Blick über die Dächer der Nachbarhäuser nach Nord- Westen. Zur Süd- Ost Seite blickt man durch raumhohe, verglaste Fensterelemente in das Panorama des Nordschwarzwaldes.
Im Inneren wurde auf Kontraste gesetzt. So stehen Sichtbetonwände und geschliffene Estriche im Gegensatz zu warmen Holzböden aus Eiche.




















